View on map Contact us about this listing
4 Beds
2 Baths
1,800SqFt
Sold
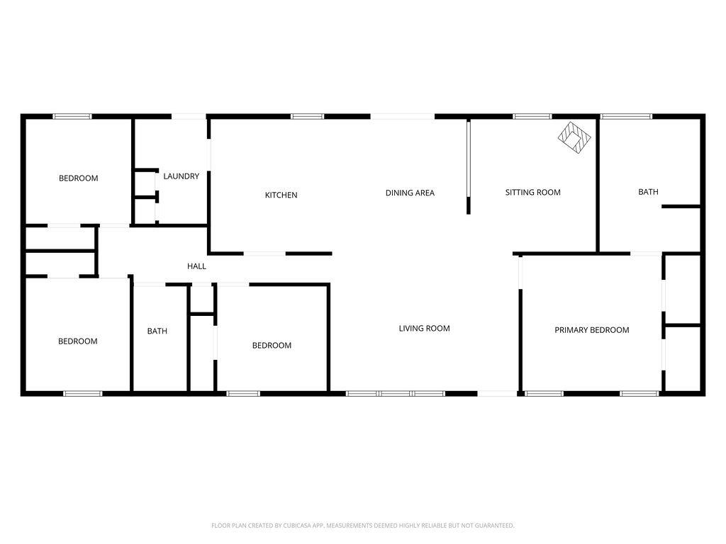
Well maintained and recently updated 4-bedroom, 2-bath home situated on just over 10 acres, located just a short distance from Lake Petenwell and Castle Rock Lake. This property features numerous updates including newer flooring, updated appliances, a new heat pump providing efficient heating and air conditioning, and recent insulation improvements for added comfort and energy efficiency. High-speed fiber optic internet with 1GB speeds is already connected to the home, perfect for remote work or streaming. Enjoy abundant wildlife and the peaceful setting as you travel down the scenic driveway leading to the home. Whether you're relaxing outdoors, taking in the natural surroundings, or enjoying the clear star-filled skies, this property offers the perfect place to unwind and experience nature. Schedule your showing and don't let this one slip away.
Property Details | ||
|---|---|---|
| Price | $349,900 | |
| Close Price | $349,900 | |
| Bedrooms | 4 | |
| Full Baths | 2 | |
| Half Baths | 0 | |
| Total Baths | 2 | |
| Property Style | Ranch | |
| Acres | 10.24 | |
| Property Type | Residential | |
| Sub type | ManufacturedOnLand | |
| MLS® Sub type | 1 story,Manufactured with Land | |
| Features | Walk-in closet(s),Vaulted ceiling,Skylight(s),At Least 1 tub | |
| Exterior Features | Deck,Patio,Fenced Yard | |
| Year Built | 2003 | |
| Subdivision | N/A | |
| Heating | Forced air,Central air | |
| Accessibility | Level drive,Level lot | |
| Lot Description | Wooded,Rural-not in subdivision | |
| Parking Description | 2 car,Detached,Opener | |
| Garage spaces | 2 | |
Geographic Data | ||
| Directions | Hwy 21 East of Necedah to North on Hwy G to left on 14th Ave. | |
| County | Juneau | |
| Latitude | 44.079435 | |
| Longitude | -90.06947 | |
| Market Area | ARMENIA - T | |
Address Information | ||
| Address | N12019 14th Avenue, Armenia, WI 54646 | |
| Postal Code | 54646 | |
| City | Armenia | |
| State | WI | |
| Country | United States | |
Listing Information | ||
| Listing Office | Advantage Realty, LLC | |
| Listing Agent | David Germann | |
| Terms | Conventional | |
School Information | ||
| District | Necedah | |
| Elementary School | Necedah | |
| Middle School | Necedah | |
| High School | Necedah | |
MLS® Information | ||
| Days on market | 9 | |
| MLS® Status | Sold | |
| Listing Date | Mar 7, 2026 | |
| Listing Last Modified | May 16, 2026 | |
| Tax ID | 290020690.07 | |
| Tax Year | 2025 | |
| Tax Annual Amount | 3291 | |
| MLS® Area | ARMENIA - T | |
| MLS® # | 2017977 | |
Map View
Contact us about this listing
Information is supplied by seller and other third parties and has not been verified. IDX information is provided exclusively for consumers’ personal, non-commercial use and that it may not be used for any purpose other than to identify prospective properties consumers may be interested in purchasing. Information deemed reliable but not guaranteed to be accurate. Listing information updated daily. Data source: SCW MLS South Central Wisconsin. Last update: 2026-05-21T19:26:03.489541Z

